Flat search

Here you will find all the flats currently offered by wbg Nürnberg.
Of course, free of commission and without real estate agent or service fees.

Flat wanted. And found at wbg Nürnberg.

Browse through our housing offers and find your dream flat with ease online. Have you found a suitable rental flat? Then click on the “Apply” button. You will then be redirected to our online applicant portal. Here you can create a free account, fill out a self-disclosure form and then apply for up to five flats at the same time.

Haven’t found anything that suits you? Create a search query for your dream flat.

By the way, all services are absolutely free of charge without exception. Offering a bribe to our staff is pointless! Even a bribery attempt will result in you being excluded from the housing allocation process.

Note: These offers are subject to change. Errors, interim rentals and technical changes are reserved.

Gebäudebild Gebäudebild 1 1 2 2 3 3 4 4 5 5 6 6 7 7 8 8 Grundriss Grundriss

prices

additional costs:
657,00 €
bail:
Drei Monatsmieten

contact person

name:
Hillen

Großzügige Praxisfläche in Langwasser

details

object number external:
10/103316/1/2003
as from:
29.10.2025
usage:
business
marketing method:
rent/lease
property:
Office / practices (practice)
construction year:
1983
street:
Euckenweg 31
place:
90471 Nürnberg
available from:
01.10.2025
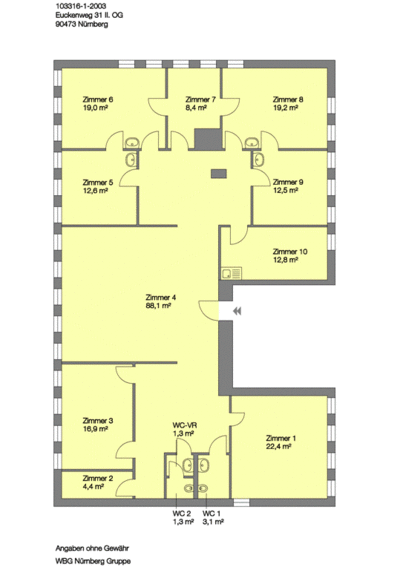
Office space:
223,01 m²
Condition:
groomed
equipment:
accessible district heating elevator Central heating
Description:
Die Praxisfläche verfügt über ca. 223,01 m² und befindet sich im 2. Obergeschoss eines gepflegten Ärztehauses. Die Fläche ist sowohl über ein Treppenhaus als auch bequem mit einem Aufzug erreichbar, was sie ideal für Patienten, Kunden oder Mitarbeiter macht.
Die Praxisfläche wird vor Ihrem Einzug umfassend modernisiert, um den aktuellen Standards zu entsprechen. Dabei werden grundlegende Renovierungsarbeiten durchgeführt, um die Fläche in einem zeitgemäßen Zustand zu übergeben. Der Einzugstermin ist nach Absprache möglich, abhängig von der Dauer der Modernisierungsarbeiten.
Location:
Mit nahegelegenen Bushaltestellen sowie einer U-Bahnstation ist die Anbindung an den öffentlichen Nahverkehr ideal. Die Autobahnen A3 und A73 sind in wenigen Fahrtminuten schnell erreichbar. Die Umgebung zeichnet sich durch eine Mischung aus Wohn- und Gewerbeimmobilien sowie zahlreichen Einkaufsmöglichkeiten und Gastronomiebetrieben aus, was die Attraktivität für Kunden und Mitarbeiter erhöht. Geschäfte des täglichen Bedarfs finden Sie in unmittelbarer Nähe.
Other information:
Gerne bieten wir Ihnen einen unverbindlichen Besichtigungstermin für diese Immobilie. Bitte hinterlassen Sie uns hierzu Ihre vollständigen Kontaktdaten.

Haftungsausschluss:
Dieses Angebot ist freibleibend, Irrtümer, Zwischenvermietung und Änderungen bleiben vorbehalten.

Explore the surroundings of the property